Агентство недвижимости

«Партнер для всех»

Наш офис в центре Минска:

пр-т. Независимости, д. 11-2

пл. Ленина, офис №21-23

Нажмите на меня smile

+375 29 151 08 08 velcom viber telegram whatsapp

an1514441@gmail.com phone

Для выбора объекта нажмите сюда

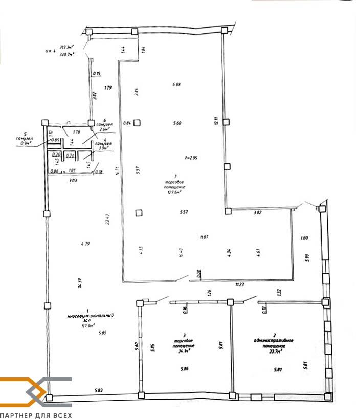
Аренда помещения, склад, Минск, Промузел Западный

от 327.6 до 327.6 м² Площадь
Блочный Материал стен
Есть Отопление
Есть Электричество
Нет Газ
Есть Вода
2 санузла Канализация
6 Этажа
14 Год постройки
Примечание
Объект сдается в аренду при условии последующей покупки данного помещения (возможна рассрочка).В аренду предлагается помещение многофункциональное общей площадью 327.6 м.кв в одной из крупнейших промышленных зон Минска – Промузел Западный, по ул. Монтажников, 9. До МКАД 600 м. Помещение расположено в цокольном этаже бизнес-центраСовременный ремонт: стены окрашены, потолки Грильято с энергосберегающим освещением, пол - плитка, современные межкомнатные двери, стеклопакетыВсе коммуникации центральные: отопление, водоснабжение, канализацияЭлектроснабжение 30кВт2 санузла, душевая2 входные металлические двериДополнительный электронный (магнитный) доступ с отдельными 2-мя входамиАвтоматическая телефонная станция, домофонВидеонаблюдениеОхраняемая парковка, 2 парковочных местаДоступ 24/7 В непосредственной близости с Бизнес-центром располагается гипермаркет Евроопт, АЗС, множество производственных и складских площадей. Оживленный деловой и транспортный трафик. Рядом расположена остановка общественного транспорта.Поможем продать/купить/обменять Вашу недвижимость!ООО «Партнер для всех», УНП 690665135, лицензия Министерства юстиции Республики Беларусь № 02240/321 от 02.12.2016, договор на оказание риэлтерских услуг № 121/2а от 19.11.2024г
Номер договора: 121/2а от 2024-11-19
Агент по недвижимости
+375 (29) 151-44-41
an1514441@gmail.com
Оставить заявку по объекту
Расположение на карте
Бесплатная консультация
  • Проверка объекта недвижимости
  • Помощь в покупке/продаже объекта недвижимости
  • Помощь в продаже с одновременной покупкой недвижимости
  • Помощь арендатору/арендодателю
  • Утверждение перепланировок, сопровождение проектов
  • Консервация любой сложности
  • Вывод в нежилой фонд, перепрофилирование
  • Юридические услуги
  • Дополнительные услуги
Закажите бесплатную консультацию!

Либо звоните сейчас!

+375 29 151 08 08 velcom viber viber telegram whatsapp

an1514441@gmail.com phone

Наш офис в центре Минска:

пр-т. Независимости, д. 11-2

пл. Ленина, офис №21-23