Агентство недвижимости

«Партнер для всех»

Наш офис в центре Минска:

пр-т. Независимости, д. 11-2

пл. Ленина, офис №21-23

Нажмите на меня smile

+375 29 151 08 08 velcom viber telegram whatsapp

an1514441@gmail.com phone

Для выбора объекта нажмите сюда

Аренда торгового помещения, метро Могилевская

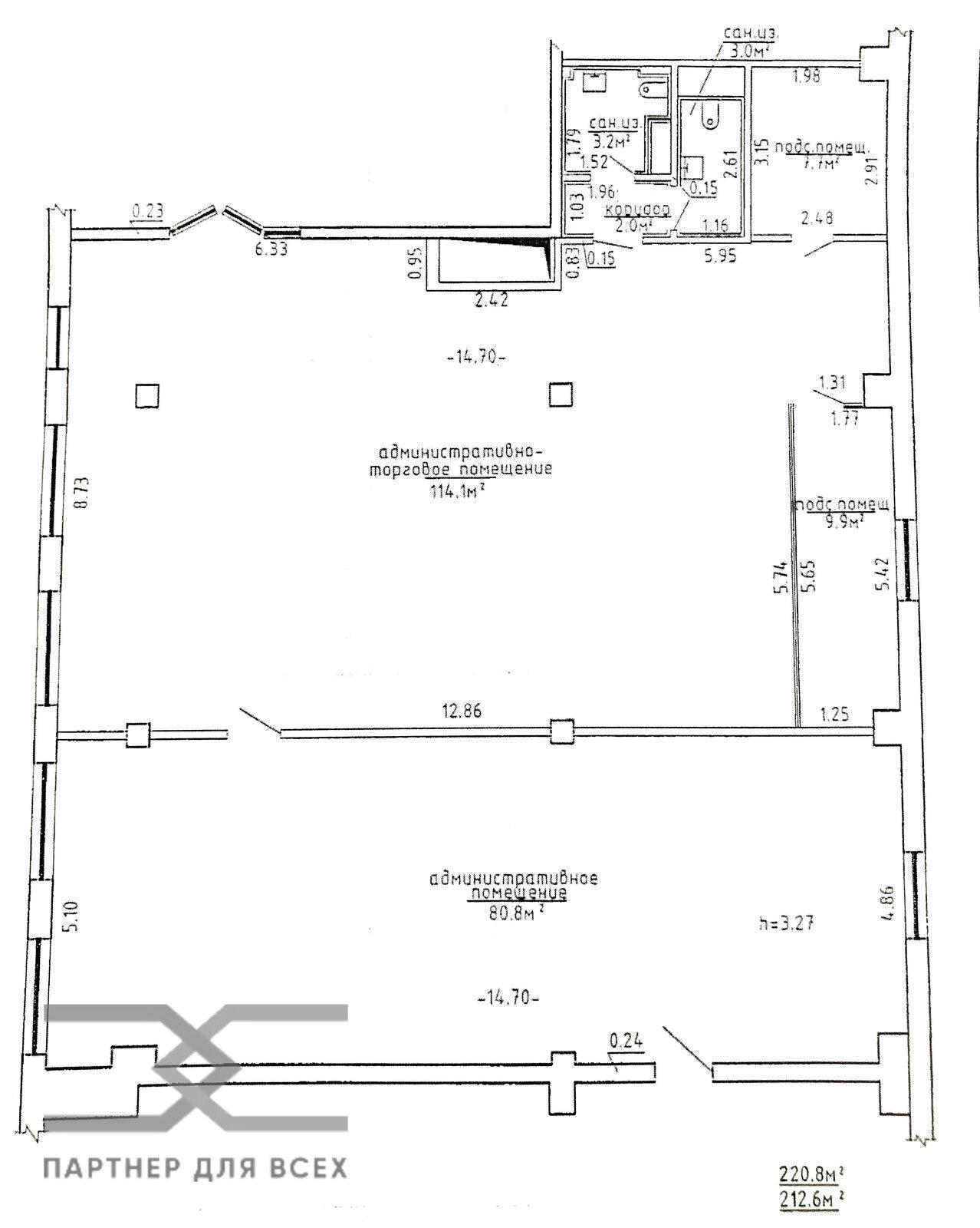
от 220.8 до 220.8 м² Площадь
Кирпичный Материал стен
Есть Отопление
Есть Электричество
Есть Газ
Есть Вода
Есть Канализация
3 из 14 Этаж
14 Год постройки
Могилёвское Направление
0.2 км Расстояние до МКАД
Примечание
В торгово-административном здании по адресу Новодворский с/с 40, располагающемся непосредственно за МКАД по Партизанскому проспекту (Большое Стиклево), сдается в аренду на 3 этаже торговое помещение 220,8 м.кв.Расстояние от ст.м. «Могилевская» 300 м.Здание оборудовано пожарной сигнализацией, приточно-вытяжной вентиляцией, санузлами, холодным и горячим водоснабжением, отоплением, телефонной и компьютерной сетью (оптоволокно 5 провайдеров), системой контроля доступа и видеонаблюдения, предоставляется юридический адрес, имеется собственная парковочная зона. Внутренняя отделка помещений – евроремонт.На территории имеются банкоматы, кафе, магазины.ООО «Партнер для всех», УНП: 690665135, лицензия: №02240/321 от 02.12.2016 г., договор на оказание риэлтерских услуг №93/2а от 10.11.2020
Номер договора: 93/2а от 2020-11-10
Директор
+375 (29) 151-44-41
an1514441@gmail.com
Оставить заявку по объекту
Расположение на карте
Бесплатная консультация
  • Проверка объекта недвижимости
  • Помощь в покупке/продаже объекта недвижимости
  • Помощь в продаже с одновременной покупкой недвижимости
  • Помощь арендатору/арендодателю
  • Утверждение перепланировок, сопровождение проектов
  • Консервация любой сложности
  • Вывод в нежилой фонд, перепрофилирование
  • Юридические услуги
  • Дополнительные услуги
Закажите бесплатную консультацию!

Либо звоните сейчас!

+375 29 151 08 08 velcom viber viber telegram whatsapp

an1514441@gmail.com phone

Наш офис в центре Минска:

пр-т. Независимости, д. 11-2

пл. Ленина, офис №21-23