Агентство недвижимости

«Партнер для всех»

Наш офис в центре Минска:

пр-т. Независимости, д. 11-2

пл. Ленина, офис №21-23

Нажмите на меня smile

+375 29 151 08 08 velcom viber telegram whatsapp

an1514441@gmail.com phone

Для выбора объекта нажмите сюда

Аренда помещения, Минск, Грибоедова

от 197.5 до 197.5 м² Площадь
Блочный Материал стен
Есть Отопление
Есть Электричество
Есть Вода
Есть Канализация
1 из 10 Этаж
20 Год постройки
Молодежная Ближайшее метро
Примечание
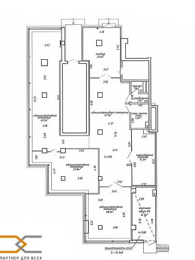
В ЖК «Залаты Маентак» по ул. Грибоедова 11 на 1 этаже 10-этажного жилого дома сдаются в аренду многофункциональные нежилые помещения общей площадью 197,5 м.кв.Помещения сдаются целиком, на части не делятся. Данные помещения подойдут для размещения офиса, банка, медицинского центра, бьюти-сферы, магазина, ПВЗ и т.д.Помещения оборудованы отдельным входам, выполнен хороший ремонт из современных материалов, много окон в пол по всему периметру.В помещениях имеются санузлы, холодное и горячее водоснабжение, канализация, отопление, приточно-вытяжная вентиляция, видеонаблюдение, кондиционирование, телефонная и компьютерная сеть, скоростной интернет (оптоволокно).Элитный чистый район. Рядом есть свободные парковочные зоны.В шаговой доступности остановки общественного транспорта. До ближайшей ст.м. «Молодежная» 1 км.ООО «Партнер для всех», УНП 690665135, лицензия Министерства юстиции Республики Беларусь № 02240/321 от 02.12.2016, договор на оказание риэлтерских услуг № 92/2а от 15.07.2024
Номер договора: 92/2а от 2024-07-15
Директор
+375 (29) 151-44-41
an1514441@gmail.com
Оставить заявку по объекту
Расположение на карте
Бесплатная консультация
  • Проверка объекта недвижимости
  • Помощь в покупке/продаже объекта недвижимости
  • Помощь в продаже с одновременной покупкой недвижимости
  • Помощь арендатору/арендодателю
  • Утверждение перепланировок, сопровождение проектов
  • Консервация любой сложности
  • Вывод в нежилой фонд, перепрофилирование
  • Юридические услуги
  • Дополнительные услуги
Закажите бесплатную консультацию!

Либо звоните сейчас!

+375 29 151 08 08 velcom viber viber telegram whatsapp

an1514441@gmail.com phone

Наш офис в центре Минска:

пр-т. Независимости, д. 11-2

пл. Ленина, офис №21-23