Агентство недвижимости

«Партнер для всех»

Наш офис в центре Минска:

пр-т. Независимости, д. 11-2

пл. Ленина, офис №21-23

Нажмите на меня smile

+375 29 151 08 08 velcom viber telegram whatsapp

an1514441@gmail.com phone

Для выбора объекта нажмите сюда

Аренда офиса, Минск, метро Ковальская Слобода

от 273 до 273 м² Площадь
Блочный Материал стен
Есть Отопление
Есть Электричество
Есть Вода
Есть Канализация
6 из 6 Этаж
16 Год постройки
Ковальская Слобода Ближайшее метро
Примечание
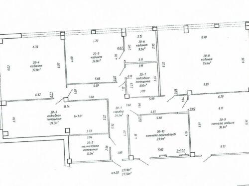
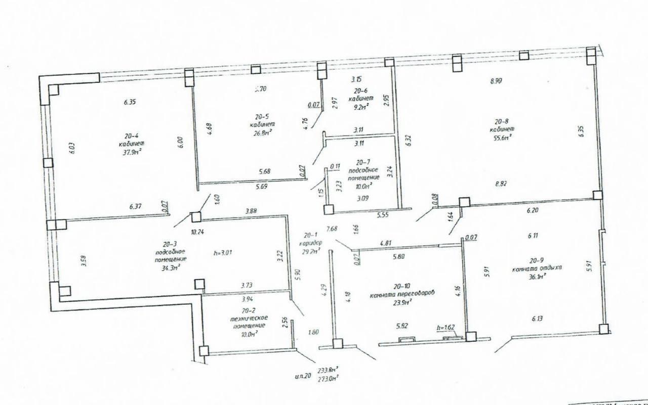
Предлагаем в аренду на длительный срок административное помещение (офис) в Бизнес-центре по ул. Жуковского, 11А, который располагается практически в самом центре г. Минска.Помещение с ремонтом, общей площадью 273 м.кв, расположено на 6-м этаже.Здание оборудовано лифтами, действует приточно-вытяжная вентиляция, центральные коммуникации, санузел на этаже. Видеонаблюдение, скоростной интернет, пропускная система, круглосуточный доступ в здание, парковка. Есть возможность размещения наружной рекламы на фасаде.Развитая инфраструктура внутри здания: здесь находятся магазин «Соседи», аптека, зоомагазин, фитнес-клуб и др. Рядом множество кафе, ресторанов, продовольственных и промышленных магазинов. Отличное транспортное сообщение: остановка общественного транспорта возле БЦ, станции метро «Ковальская Слобода» и «Институт Культуры» находятся в шаговой доступности.Также на 5-м этаже есть помещеие площадью 272.2 м.кв., состоящее из 6-ти помещений: 171.1 м.кв., остальные от 9.2 до 37.3 м.кв.ООО «Партнер для всех», УНП 690665135, лицензия Министерства юстиции Республики Беларусь № 02240/321 от 02.12.2016, договор на оказание риэлтерских услуг №66/2а от 07.05.2024
Номер договора: 66/2а от 2024-05-07
Агент по недвижимости
+375 (29) 151-44-41
an1514441@gmail.com
Оставить заявку по объекту
Расположение на карте
Бесплатная консультация
  • Проверка объекта недвижимости
  • Помощь в покупке/продаже объекта недвижимости
  • Помощь в продаже с одновременной покупкой недвижимости
  • Помощь арендатору/арендодателю
  • Утверждение перепланировок, сопровождение проектов
  • Консервация любой сложности
  • Вывод в нежилой фонд, перепрофилирование
  • Юридические услуги
  • Дополнительные услуги
Закажите бесплатную консультацию!

Либо звоните сейчас!

+375 29 151 08 08 velcom viber viber telegram whatsapp

an1514441@gmail.com phone

Наш офис в центре Минска:

пр-т. Независимости, д. 11-2

пл. Ленина, офис №21-23