Агентство недвижимости

«Партнер для всех»

Наш офис в центре Минска:

пр-т. Независимости, д. 11-2

пл. Ленина, офис №21-23

Нажмите на меня smile

+375 29 151 08 08 velcom viber telegram whatsapp

an1514441@gmail.com phone

Для выбора объекта нажмите сюда

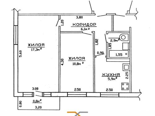
Купить 2-комнатную квартиру в Слуцке, центр города

43.8 / 28.1 / 5.9 м² Общая, жилая, кухня
Панельный Материал стен
4 из 5 Этаж
1963 Год постройки
Нормальный ремонт Ремонт
Совмещенный Сан.узел
Слуцкое Направление
90 км Расстояние до МКАД
Примечание
Продаётся тёплая и светлая 2-комнатная квартира на комфортном 4 этаже 5-ти этажного панельного дома в центре г. Слуцка. Капремонт был в 2005 году: крыша двускатная, дом утеплён снаружи, в квартире всегда сухо и тепло.У вас есть возможность сделать ремонт на свой вкус.Общая площадь составляет 43,8м2, жилая 28,1м2и кухня 5,9м2, с/у совмещенный. Комнаты изолированные (17,3 и 10,8м2). Квартира в жилом состоянии. Установленаметаллическая входная дверь.Локация - один из главных плюсов!Вся инфраструктура в шаговой доступности: 2 д/с, СШ N6, магазины, почта, банк, спорткомплекс Дельфин, ТЦ Маяк и Европарк.Рядом остановки городских автобусов. Отличный вариант для молодой семьи или под сдачу в аренду.Никто не прописан.Чистая продажа.Звоните и приходите на просмотр!Это именно тот вариант, который вы искали.Не упустите свой шанс!
Номер договора: 23/5 от 2026-04-15
Агент по недвижимости
+375 (29) 151-44-41
an1514441@gmail.com
Оставить заявку по объекту
Расположение на карте
Бесплатная консультация
  • Проверка объекта недвижимости
  • Помощь в покупке/продаже объекта недвижимости
  • Помощь в продаже с одновременной покупкой недвижимости
  • Помощь арендатору/арендодателю
  • Утверждение перепланировок, сопровождение проектов
  • Консервация любой сложности
  • Вывод в нежилой фонд, перепрофилирование
  • Юридические услуги
  • Дополнительные услуги
Закажите бесплатную консультацию!

Либо звоните сейчас!

+375 29 151 08 08 velcom viber viber telegram whatsapp

an1514441@gmail.com phone

Наш офис в центре Минска:

пр-т. Независимости, д. 11-2

пл. Ленина, офис №21-23