Агентство недвижимости

«Партнер для всех»

Наш офис в центре Минска:

пр-т. Независимости, д. 11-2

пл. Ленина, офис №21-23

Нажмите на меня smile

+375 29 151 08 08 velcom viber telegram whatsapp

an1514441@gmail.com phone

Для выбора объекта нажмите сюда

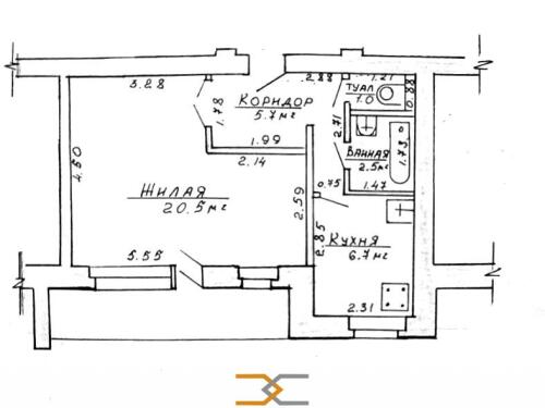
Продажа 1-комнатной квартиры улучшенной планировки в центре г. Слуцка

36.7 / 20.5 / 6.7 м² Общая, жилая, кухня
Кирпичный Материал стен
5 из 5 Этаж
1983 Год постройки
Хороший ремонт Ремонт
Лоджия Балкон
Раздельный Сан.узел
Слуцкое Направление
90 км Расстояние до МКАД
Примечание
Продаётся 1-комнатная квартира улучшенной планировки на 5/5 этаже кирпичного дома в центре г. Слуцка.Дом 1983 гп, с новой двускатной крышей. В квартире выполнен современный ремонт: окна и лоджия - ПВХ, пол - линолеум, встроенная кухня остаётся покупателю, в с/у - керамогранит, натяжной потолок по всей квартире кроме коридора.Общая площадь составляет 36,7м2, жилая 20,5м2и кухня 6,7м2, просторного коридора 5,7м2со встроенным шкафом-купе и раздельным с/у. На большой лоджии оборудовано место для отдыха.Последний этаж и кирпичный дом даст вам тишину от соседей. Кондиционер обеспечит вам прохладу летом.Спешите стать обладателем современной евродвушки!Вся инфраструктура в шаговой доступности: 2 д/с, школы, магазины, почта, спорткомплекс Дельфин.Рядом остановки городских автобусов.Отличный вариант для молодой семьи или под сдачу в аренду.ООО «Партнер для всех», УНП 690665135, лицензия Министерства юстиции Республики Беларусь № 02240/321 от 02.12.2016, договор на оказание риэлтерских услуг № 22/5 от 14.04.2026г.
Номер договора: 22/5 от 2026-04-14
Агент по недвижимости
+375 (29) 151-44-41
an1514441@gmail.com
Оставить заявку по объекту
Расположение на карте
Бесплатная консультация
  • Проверка объекта недвижимости
  • Помощь в покупке/продаже объекта недвижимости
  • Помощь в продаже с одновременной покупкой недвижимости
  • Помощь арендатору/арендодателю
  • Утверждение перепланировок, сопровождение проектов
  • Консервация любой сложности
  • Вывод в нежилой фонд, перепрофилирование
  • Юридические услуги
  • Дополнительные услуги
Закажите бесплатную консультацию!

Либо звоните сейчас!

+375 29 151 08 08 velcom viber viber telegram whatsapp

an1514441@gmail.com phone

Наш офис в центре Минска:

пр-т. Независимости, д. 11-2

пл. Ленина, офис №21-23