Агентство недвижимости

«Партнер для всех»

Наш офис в центре Минска:

пр-т. Независимости, д. 11-2

пл. Ленина, офис №21-23

Нажмите на меня smile

+375 29 151 08 08 velcom viber telegram whatsapp

an1514441@gmail.com phone

Для выбора объекта нажмите сюда

Купить квартиру в Минске, ул. Притыцкого, метро Спортивная

92.8 / 54.7 / 15.4 м² Общая, жилая, кухня
Каркасно-блочный Материал стен
8 из 9 Этаж
2006 Год постройки
Хороший ремонт Ремонт
Лоджия Балкон
Раздельный Сан.узел
Спортивная Ближайшее метро
Примечание
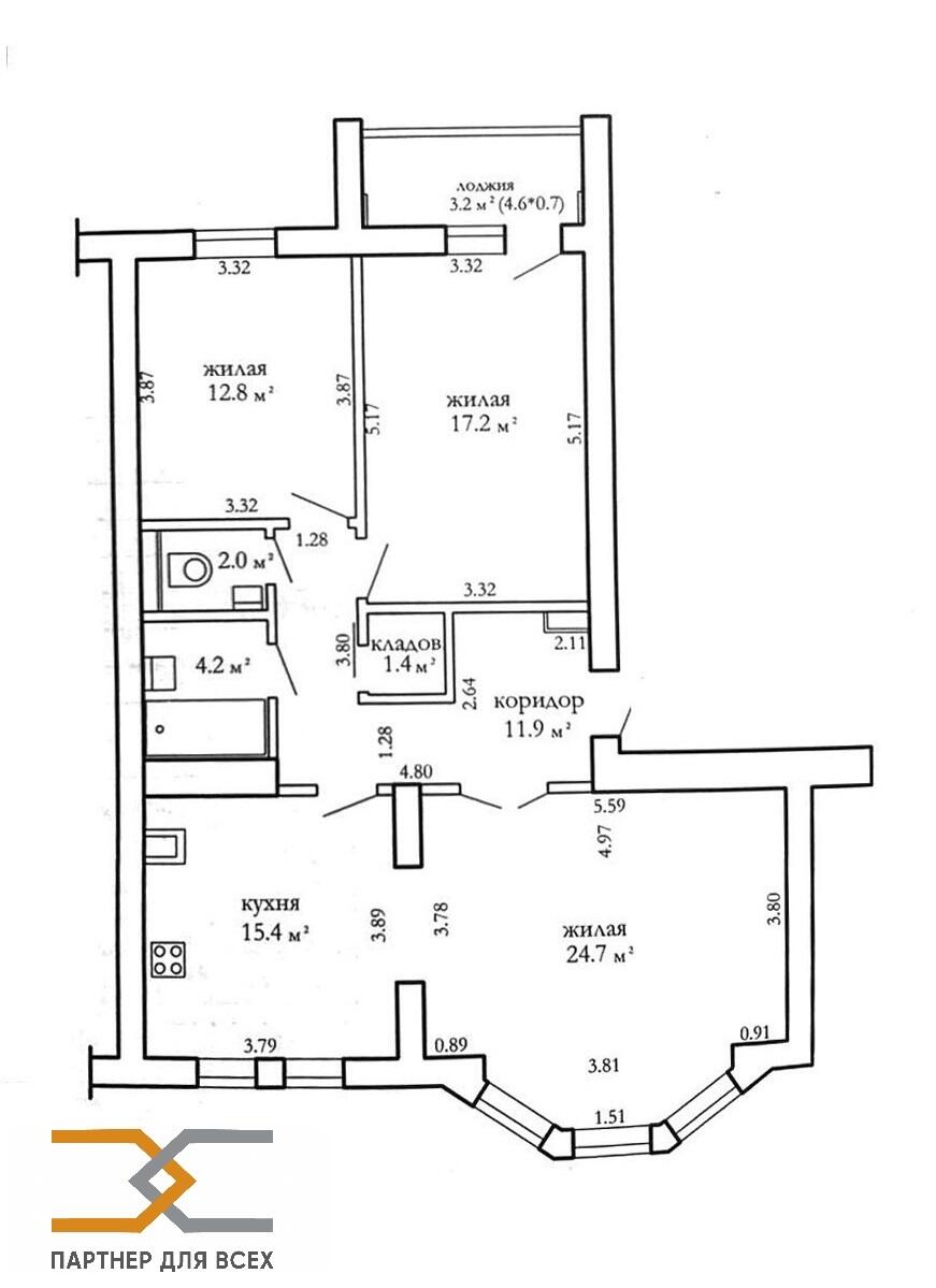
Продается просторная 3-комнатная квартира с отличной планировкой в 2-х минутах ходьбы от станции метро «Спротивная» по адресу: г. Минск, ул. Притыцкого, 39.Квартира площадью по СНБ 92.8 м.кв. расположена на 8-м этаже 9-ти этажного каркасно-блочного дома 2006 года постройки.Шикарная планировка: жилая площадь 54.7 м.кв., 3 изолированные комнаты, просторная кухня 15.4 м.кв, большая гостиная 24.7 м.кв.В квартире выполнен хороший ремонт: стены выровнены и окрашены, полы – паркет, на кухне и санузлах – плитка, потолки – гипсокартон, окна – стеклопакеты ПВХ. В гостиной есть встроенный электрокамин.Высокие потолки 2.71 м.Раздельный санузел – облицован плиткой, есть вся необходимая сантехника и техника.Просторная кухня 15.4 м.кв. оборудована: варочная панель, духовой шкаф, холодильник, вытяжка, посудомоечная машина. Вся техника импортного производства.Окна выходят на обе стороны дома, из окон открывается прекрасный вид.Чистый подъезд и доброжелательные соседи. В тамбуре 2 квартиры.Зеленый и благоустроенный двор с достаточным количеством парковочных мест и большой детской площадкой.Развитая инфраструктура, все необходимое в шаговой доступности: школы, детские сады, магазины, ТЦ «Тивали», множество кофеен, банки, учреждения бытового обслуживания, здравоохранения и отдыха. Рядом, в 2-х минутах ходьбы станция метро «Спортивная». Есть все, что нужно для комфортной жизни.Готовы к диалогу по цене.Просмотр в удобное для Вас время.Ищем встречный вариант: 1-2 комнатную квартиру в Московском, Фрунзенском районах г. Минска.ООО «Партнер для всех», УНП 690665135, лицензия Министерства юстиции Республики Беларусь № 02240/321 от 02.12.2016, договор на оказание риэлтерских услуг № 102/7 от 30.09.2025
Номер договора: 102/7 от 2025-09-30
Агент по недвижимости
+375 (29) 151-44-41
an1514441@gmail.com
Оставить заявку по объекту
Расположение на карте
Бесплатная консультация
  • Проверка объекта недвижимости
  • Помощь в покупке/продаже объекта недвижимости
  • Помощь в продаже с одновременной покупкой недвижимости
  • Помощь арендатору/арендодателю
  • Утверждение перепланировок, сопровождение проектов
  • Консервация любой сложности
  • Вывод в нежилой фонд, перепрофилирование
  • Юридические услуги
  • Дополнительные услуги
Закажите бесплатную консультацию!

Либо звоните сейчас!

+375 29 151 08 08 velcom viber viber telegram whatsapp

an1514441@gmail.com phone

Наш офис в центре Минска:

пр-т. Независимости, д. 11-2

пл. Ленина, офис №21-23