Агентство недвижимости

«Партнер для всех»

Наш офис в центре Минска:

пр-т. Независимости, д. 11-2

пл. Ленина, офис №21-23

Нажмите на меня smile

+375 29 151 08 08 velcom viber telegram whatsapp

an1514441@gmail.com phone

Для выбора объекта нажмите сюда

Купить дачу, с/т Чаровница, Логойский район, 35 км от МКАД

97.6 / – / – м² Общая, жилая, кухня
Кирпич Материал стен
Печное Отопление
Есть Электричество
Нет Газ
С/у на улице Канализация
1990 Год постройки
Мядельское Направление
35 км Расстояние до МКАД
Примечание
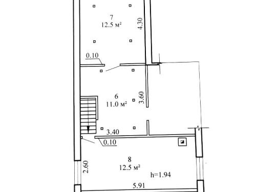
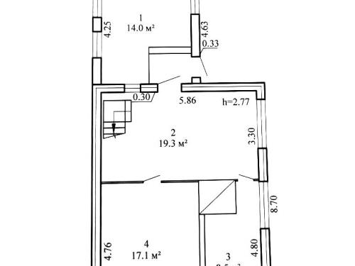
Продаётся уютный дачный домик с земельным участком в с/т "Чаровница"Логойского района Минской области, Мядельское направление.Садовое товарищество находится в 35 км от Минска на территории "Купаловского"заказника, в окружении леса.Домик просторный, 97.6 кв.м. общей площади. На первом этаже 3 комнаты, летняя кухня ,есть жилой мансардный этаж.Отопление печное, вода сезонная, канализация местная.Участок в частной собственности 6.95 соток, огорожен, с небольшим уклоном. На участке стоит отдельно стоящая баня.Хорошие подъездные пути. Остановка автобуса в 300 м. Автобус ходит по расписанию.Есть возможность купить смежный второй участок, который находится по торцу этого участка. Хорошие соседи.ООО «Партнер для всех», УНП 690665135, лицензия Министерства юстиции Республики Беларусь № 02240/321 от 02.12.2016, договор на оказание риэлтерских услуг № 53/7 от 08.04.2026г.
Номер договора: 53/7 от 2026-04-08
Риэлтер
+375 (29) 151-44-41
an1514441@gmail.com
Оставить заявку по объекту
Расположение на карте
Бесплатная консультация
  • Проверка объекта недвижимости
  • Помощь в покупке/продаже объекта недвижимости
  • Помощь в продаже с одновременной покупкой недвижимости
  • Помощь арендатору/арендодателю
  • Утверждение перепланировок, сопровождение проектов
  • Консервация любой сложности
  • Вывод в нежилой фонд, перепрофилирование
  • Юридические услуги
  • Дополнительные услуги
Закажите бесплатную консультацию!

Либо звоните сейчас!

+375 29 151 08 08 velcom viber viber telegram whatsapp

an1514441@gmail.com phone

Наш офис в центре Минска:

пр-т. Независимости, д. 11-2

пл. Ленина, офис №21-23