Агентство недвижимости

«Партнер для всех»

Наш офис в центре Минска:

пр-т. Независимости, д. 11-2

пл. Ленина, офис №21-23

Нажмите на меня smile

+375 29 151 08 08 velcom viber telegram whatsapp

an1514441@gmail.com phone

Для выбора объекта нажмите сюда

Купить дом, все коммуникации, г. Слуцк

76.8 / 57.2 / 7.8 м² Общая, жилая, кухня
Кирпич Материал стен
Центральное Отопление
Есть Электричество
Есть Газ
Центральный водопровод Вода
Есть Канализация
1992 Год постройки
Слуцкое Направление
90 км Расстояние до МКАД
Примечание
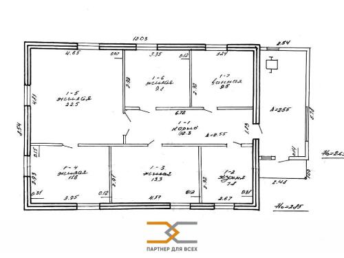
Продается дом со всеми удобствами по адресу: г. Слуцк, ул. Вечеркевича.В доме общей площадью 76,8 м.кв. четыре комнаты, раздельный санузел. Водоснабжение центральное, отопление также центральное. В топочной сохранён дополнительно твердотопливный котёл. В ванной установлен бойлер для обогрева воды, подключена стиральная машина. Канализация местная. В доме можно обустроить второй этаж. Фундамент высокий без трещин.При продаже остается мебель. На участке расположен кирпичный гараж. Из насаждений: яблони, алыча, малина. Ограждение от улицы металлопрофиль.На расстоянии 100 м протекает река.Дом располагается в тихом спальном районе с развитой инфраструктурой: гимназия, 2 продуктовых магазина, кафе Блино, Милано, Мята; парикмахерская, валберис, набережная и т.д.При осмотре уместен торг.ООО «Партнер для всех», УНП 690665135, лицензия Министерства юстиции Республики Беларусь № 02240/321 от 02.12.2016, договор на оказание риэлтерских услуг № 6/5 от 06.02.2026г
Номер договора: 6/5 от 2026-02-06
Агент по недвижимости
+375 (29) 151-44-41
an1514441@gmail.com
Оставить заявку по объекту
Расположение на карте
Бесплатная консультация
  • Проверка объекта недвижимости
  • Помощь в покупке/продаже объекта недвижимости
  • Помощь в продаже с одновременной покупкой недвижимости
  • Помощь арендатору/арендодателю
  • Утверждение перепланировок, сопровождение проектов
  • Консервация любой сложности
  • Вывод в нежилой фонд, перепрофилирование
  • Юридические услуги
  • Дополнительные услуги
Закажите бесплатную консультацию!

Либо звоните сейчас!

+375 29 151 08 08 velcom viber viber telegram whatsapp

an1514441@gmail.com phone

Наш офис в центре Минска:

пр-т. Независимости, д. 11-2

пл. Ленина, офис №21-23