Агентство недвижимости

«Партнер для всех»

Наш офис в центре Минска:

пр-т. Независимости, д. 11-2

пл. Ленина, офис №21-23

Нажмите на меня smile

+375 29 151 08 08 velcom viber telegram whatsapp

an1514441@gmail.com phone

Для выбора объекта нажмите сюда

Купить дачу, с/т Зелёная Дубравушка, 35 км от Минска

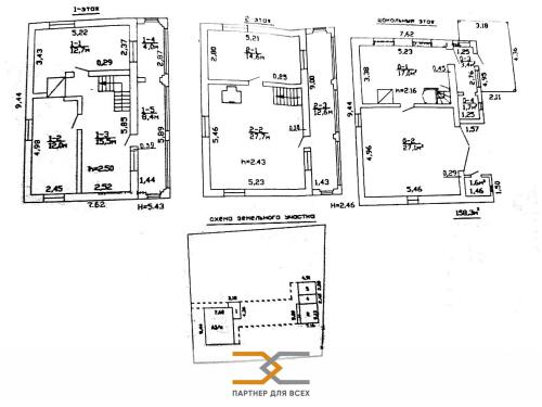
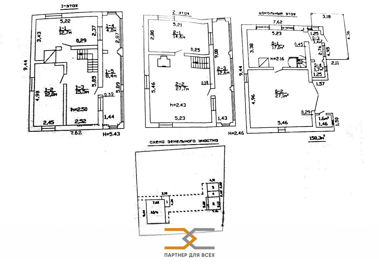
158.3 / – / – м² Общая, жилая, кухня
Печное Отопление
Есть Электричество
Есть Газ
Есть Канализация
Молодечненское Направление
35 км Расстояние до МКАД
Примечание
Продаётся дача для большой и дружной семьи в с/т "Зелёная Дубравушка".Находится дача всего в 35 км от МКАД в Молодечненском направлении. В пешей доступности ж/д станция Дубравы.Большой и просторный дом, 3 этажа, общей площадью 158,3 м.кв. Обустроенный просторный подвал для хранения овощей и фруктов. Печное отопление, на 3-ем этаже камин. Дом смешанной конструкции: внутренний слой - газосиликатные блоки, наружный - керамический кирпич.У вас есть возможность обустроить дом под себя.Участок большой 12.33 сотки, с небольшим уклоном, ухоженный, огорожен: забор деревянный + сетка-рабица. На участке отдельно стоящие сарай и баня. Вода сезонная (на участке), канализация местная.Отличное транспортное сообщение: электричка Минск-Молодечно до ж/д ст. Пралеска или Дубравы. От ж/д ст. Дубравы 8 минут ходьбы. На ст. Пралески есть 2 продуктовых магазина с круглогодичным графиком работы, строительный магазин. В выходные дни рядом с магазином организован мини-рынок с/х продукции.Садовое товарищество "Зелёная Дубравушка"находится в красивом месте - рядом с лесом. До товарищества без проблем можно добраться и на машине. Подъездные пути отличные: асфальт и 0.4 км ПГС.Мечтали о даче? Звоните!Мы поможем вашей мечте осуществиться!ООО «Партнер для всех», УНП 690665135, лицензия Министерства юстиции Республики Беларусь № 05240/321 от 02.12.2016, договор на оказание риэлтерских услуг № 6/7 от 21.01.2026
Номер договора: 6/7 от 2026-01-21
Риэлтер
+375 (29) 151-44-41
an1514441@gmail.com
Оставить заявку по объекту
Расположение на карте
Бесплатная консультация
  • Проверка объекта недвижимости
  • Помощь в покупке/продаже объекта недвижимости
  • Помощь в продаже с одновременной покупкой недвижимости
  • Помощь арендатору/арендодателю
  • Утверждение перепланировок, сопровождение проектов
  • Консервация любой сложности
  • Вывод в нежилой фонд, перепрофилирование
  • Юридические услуги
  • Дополнительные услуги
Закажите бесплатную консультацию!

Либо звоните сейчас!

+375 29 151 08 08 velcom viber viber telegram whatsapp

an1514441@gmail.com phone

Наш офис в центре Минска:

пр-т. Независимости, д. 11-2

пл. Ленина, офис №21-23