Агентство недвижимости

«Партнер для всех»

Наш офис в центре Минска:

пр-т. Независимости, д. 11-2

пл. Ленина, офис №21-23

Нажмите на меня smile

+375 29 151 08 08 velcom viber telegram whatsapp

an1514441@gmail.com phone

Для выбора объекта нажмите сюда

Купить дом, д. Квасыничи, 5 км от Слуцка

260.9 / 157.4 / 16.8 м² Общая, жилая, кухня
Отопление на газу Отопление
Есть Электричество
Есть Газ
Колодец Вода
Есть Канализация
1994 Год постройки
Слуцкое Направление
107 км Расстояние до МКАД
Примечание
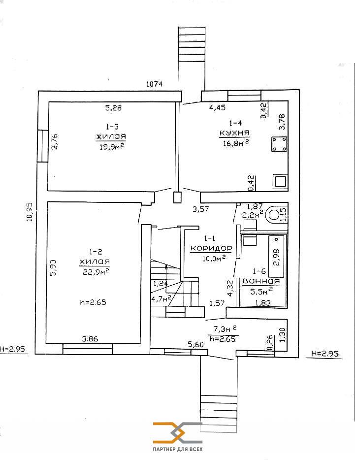
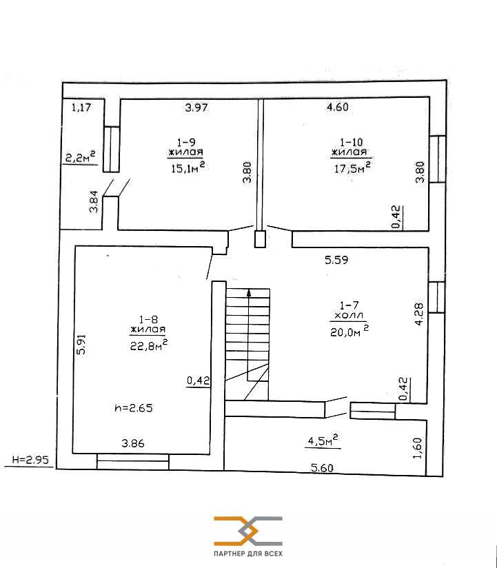
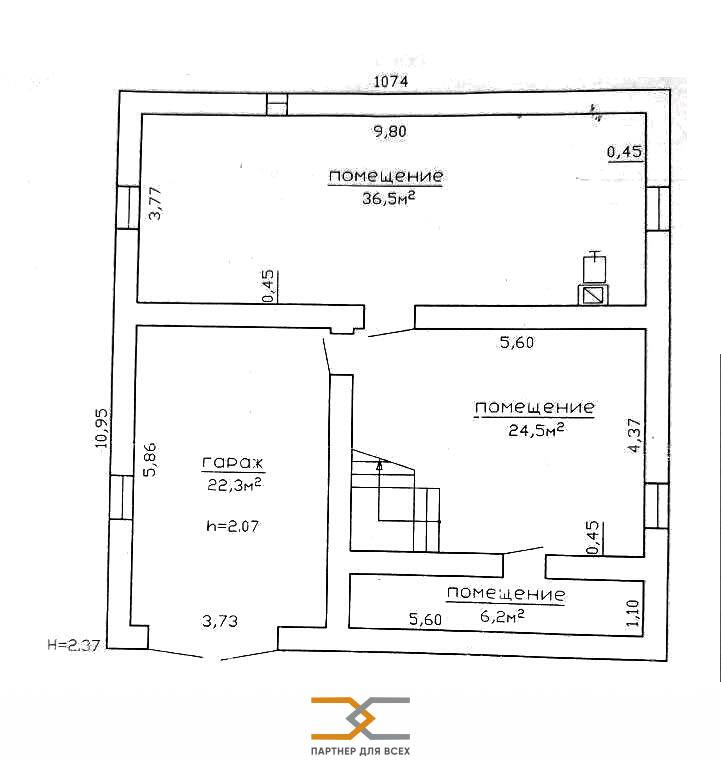
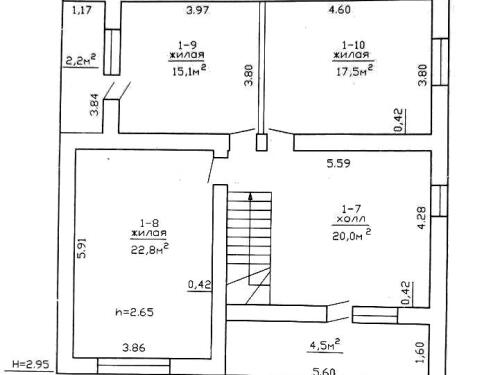
Продаётся просторный жилой дом 1994 г.п. в деревне Квасыничи, всего в 5 км от г. Слуцка. Материал стен: блок + обшит кирпичем; крыша: металлочерепица; окна - ПВХ; теплые полы. В доме 5 жилых комнат, 2 балкона.Материал полов: на первом этаже плитка, на втором - ламинат.Отопление газовое, канализация центральная, вода - скважина, новая электропроводка, сантехника. Ванна с гидромассажем, биде.Общая площадь 260.9 м2, жилая 157.4 м2, кухня 16.8 м2. Также имеется подвал для хранения заготовок и с/х продукции. Гараж. На участке летняя кухня, растут плодовые деревья и кусты.В шаговой доступности водоем. Дом расположен на земельном участке площадью 14.74 соток, забор: ворота и калитка из металлопрофиля.Вся инфраструктура находится в шаговой доступности: д/с, школа, магазин, остановка.Хорошие подъездные пути - асфальт.Приглашаем на просмотр!ООО «Партнер для всех», УНП 690665135, лицензия Министерства юстиции Республики Беларусь № 02240/321 от 02.12.2016, договор на оказание риэлтерских услуг № 110/5 от 01.10.2025
Номер договора: 110/5 от 2025-10-01
Агент по недвижимости
+375 (29) 151-44-41
an1514441@gmail.com
Оставить заявку по объекту
Расположение на карте
Бесплатная консультация
  • Проверка объекта недвижимости
  • Помощь в покупке/продаже объекта недвижимости
  • Помощь в продаже с одновременной покупкой недвижимости
  • Помощь арендатору/арендодателю
  • Утверждение перепланировок, сопровождение проектов
  • Консервация любой сложности
  • Вывод в нежилой фонд, перепрофилирование
  • Юридические услуги
  • Дополнительные услуги
Закажите бесплатную консультацию!

Либо звоните сейчас!

+375 29 151 08 08 velcom viber viber telegram whatsapp

an1514441@gmail.com phone

Наш офис в центре Минска:

пр-т. Независимости, д. 11-2

пл. Ленина, офис №21-23