Агентство недвижимости

«Партнер для всех»

Наш офис в центре Минска:

пр-т. Независимости, д. 11-2

пл. Ленина, офис №21-23

Нажмите на меня smile

+375 29 151 08 08 velcom viber telegram whatsapp

an1514441@gmail.com phone

Для выбора объекта нажмите сюда

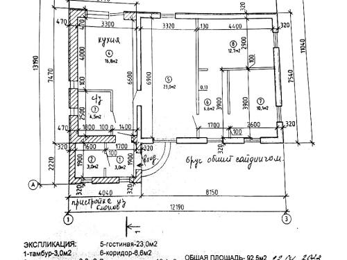
92.5 / 45.8 / 16.8 м² Общая, жилая, кухня
Отопление на газу Отопление
Есть Электричество
Есть Газ
Колодец Вода
С/у на улице Канализация
1960 Год постройки
Слуцкое Направление
120 км Расстояние до МКАД
Примечание
Продается дом в прекрасном живописном месте д. Поповцы Слуцкого района.Общая площадь дома 92,5 м.кв. В доме три просторных комнаты общей площадью 45,8 м.кв., кухня площадью 16,8 м.кв. С обратной стороны дома выход на открытую террасу общей площадью 42.3 м.кв.К дому подведен газ, осталось только сделать разводку по дому. В доме имеется совмещенный санузел, выведена вся разводка под сантехнику. В доме все окна ПВХ, входная дверь металлическая, дверь на террасе пвх. По всему дому залита стяжка. Внутри дома остался стройматериал для внутренней отделки. На чердаке мусора нет, стропила крепкие.Фундамент крепкий высокий. Дом поднимался на новый фундамент. Основной дом выполнен из бруса, обшит сайдингом. Нижние венцы крепкие, менять не нужно. Пристройка к дому, где расположены кухня, санузел выполнена из блоков. Фундамент сплошной на весь дом.Ограждение от улицы - металический каркас, в гараже подготовлен для установки металоштакетник.На участке площадью 0,25 га расположены: гараж, на втором этаже летняя комната. Также имеется очень хороший погреб. Из насаждений: яблони.Подъездные пути асфальт и 500 м гравийка. В деревне находится продуктовый магазин, также ездит автолавка. В соседней деревне Мелешки находится школа, детский сад, фап, дом культуры, почта, отделение банка. Школьный автобус возит детей.Из Слуцка в д. Поповцы ходит пригородный автобус. На расстоянии 1 км находится лес, в 4 км расположено озеро.Расстояние от г. Слуцка до д. Поповцы 15 км, от МКАД - 120 км.При осмотре уместен торг.ООО «Партнер для всех», УНП 690665135, лицензия Министерства юстиции Республики Беларусь № 02240/321 от 02.12.2016, договор на оказание риэлтерских услуг № 107/5 от 25.09.2025г
Номер договора: 107/5 от 2025-09-25
Директор
+375 (29) 151-44-41
an1514441@gmail.com
Оставить заявку по объекту
Расположение на карте
Бесплатная консультация
  • Проверка объекта недвижимости
  • Помощь в покупке/продаже объекта недвижимости
  • Помощь в продаже с одновременной покупкой недвижимости
  • Помощь арендатору/арендодателю
  • Утверждение перепланировок, сопровождение проектов
  • Консервация любой сложности
  • Вывод в нежилой фонд, перепрофилирование
  • Юридические услуги
  • Дополнительные услуги
Закажите бесплатную консультацию!

Либо звоните сейчас!

+375 29 151 08 08 velcom viber viber telegram whatsapp

an1514441@gmail.com phone

Наш офис в центре Минска:

пр-т. Независимости, д. 11-2

пл. Ленина, офис №21-23