Агентство недвижимости

«Партнер для всех»

Наш офис в центре Минска:

пр-т. Независимости, д. 11-2

пл. Ленина, офис №21-23

Нажмите на меня smile

+375 29 151 08 08 velcom viber telegram whatsapp

an1514441@gmail.com phone

Для выбора объекта нажмите сюда

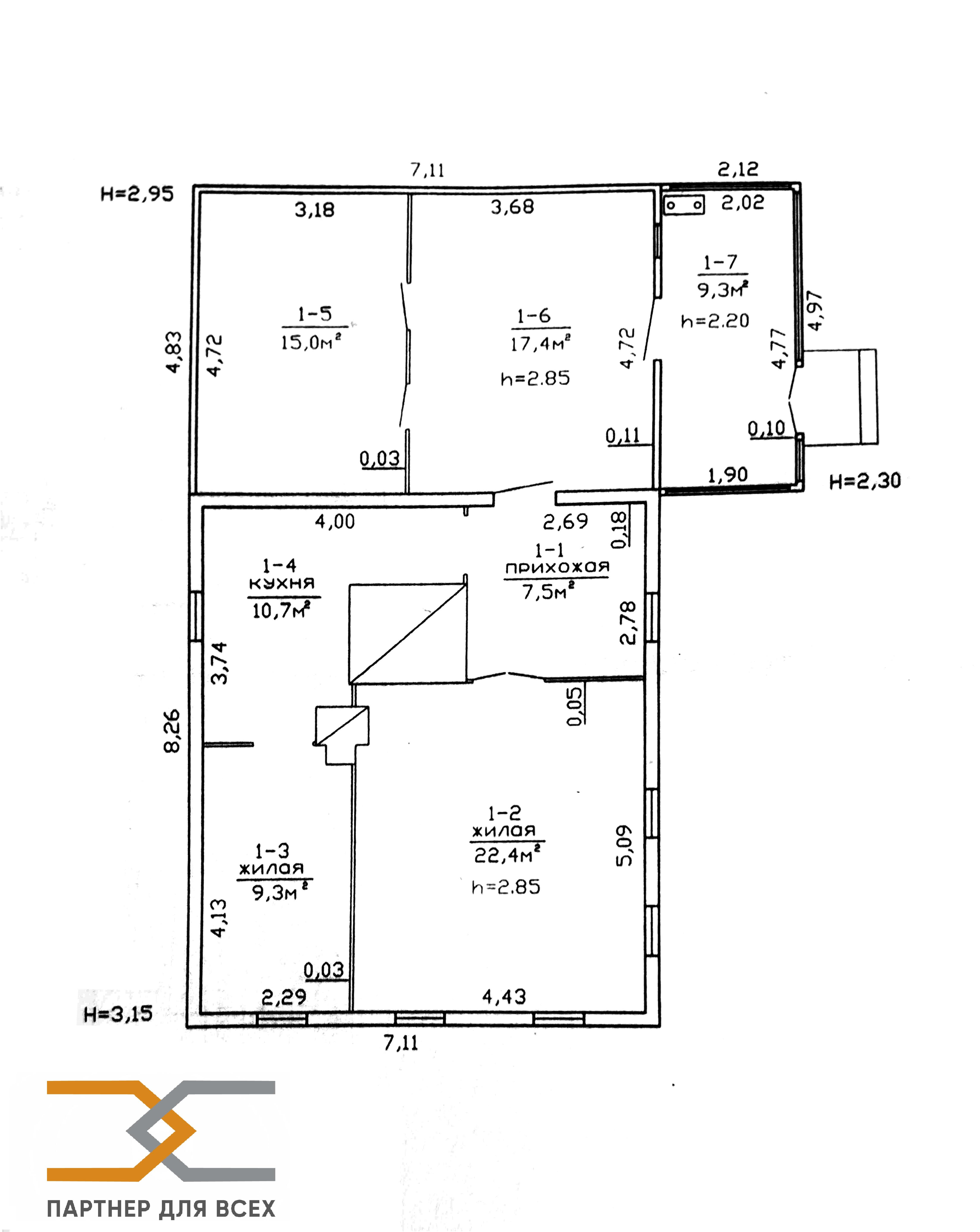
Купить дом недорого, д. Знамя, 17 км от г. Слуцка

91.6 / 49.9 / 10.7 м² Общая, жилая, кухня
Печное Отопление
Есть Электричество
Есть Газ
Колодец Вода
С/у на улице Канализация
1968 Год постройки
Слуцкое Направление
88 км Расстояние до МКАД
Примечание
Продается дом в деревне Знамя Слуцкого района, в 17 км от города.Подведен газ, вода - колодец, туалет на улице. Отопление печное. Современная печь из красного кирпича. Крепкие полы. По крыше проблем нет.Большой участок 25 соток, на котором расположен погреб. Растут плодовые деревья.Деревня имеет развитую инфраструктуру: школа,сад, мед.амбулатория, два магазина, автобусные остановки.Дом подойдет для круглогодичного проживания.ООО «Партнер для всех», УНП 690665135, лицензия Министерства юстиции Республики Беларусь № 02240/321 от 02.12.2016, договор на оказание риэлтерских услуг № 105/5 от 02.09.2025
Номер договора: 105/5 от 2025-09-02
Агент по недвижимости
+375 (29) 151-44-41
an1514441@gmail.com
Оставить заявку по объекту
Расположение на карте
Бесплатная консультация
  • Проверка объекта недвижимости
  • Помощь в покупке/продаже объекта недвижимости
  • Помощь в продаже с одновременной покупкой недвижимости
  • Помощь арендатору/арендодателю
  • Утверждение перепланировок, сопровождение проектов
  • Консервация любой сложности
  • Вывод в нежилой фонд, перепрофилирование
  • Юридические услуги
  • Дополнительные услуги
Закажите бесплатную консультацию!

Либо звоните сейчас!

+375 29 151 08 08 velcom viber viber telegram whatsapp

an1514441@gmail.com phone

Наш офис в центре Минска:

пр-т. Независимости, д. 11-2

пл. Ленина, офис №21-23