Агентство недвижимости

«Партнер для всех»

Наш офис в центре Минска:

пр-т. Независимости, д. 11-2

пл. Ленина, офис №21-23

Нажмите на меня smile

+375 29 151 08 08 velcom viber telegram whatsapp

an1514441@gmail.com phone

Для выбора объекта нажмите сюда

Куплю дом в Клецком районе

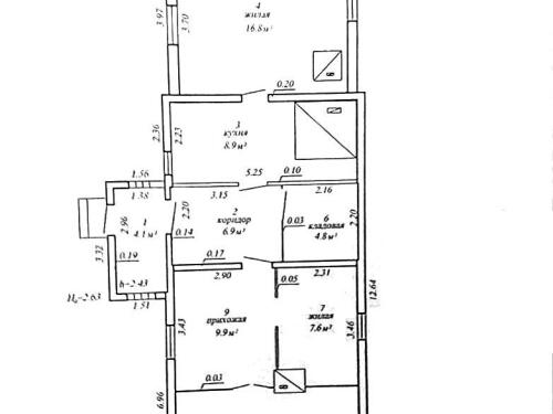
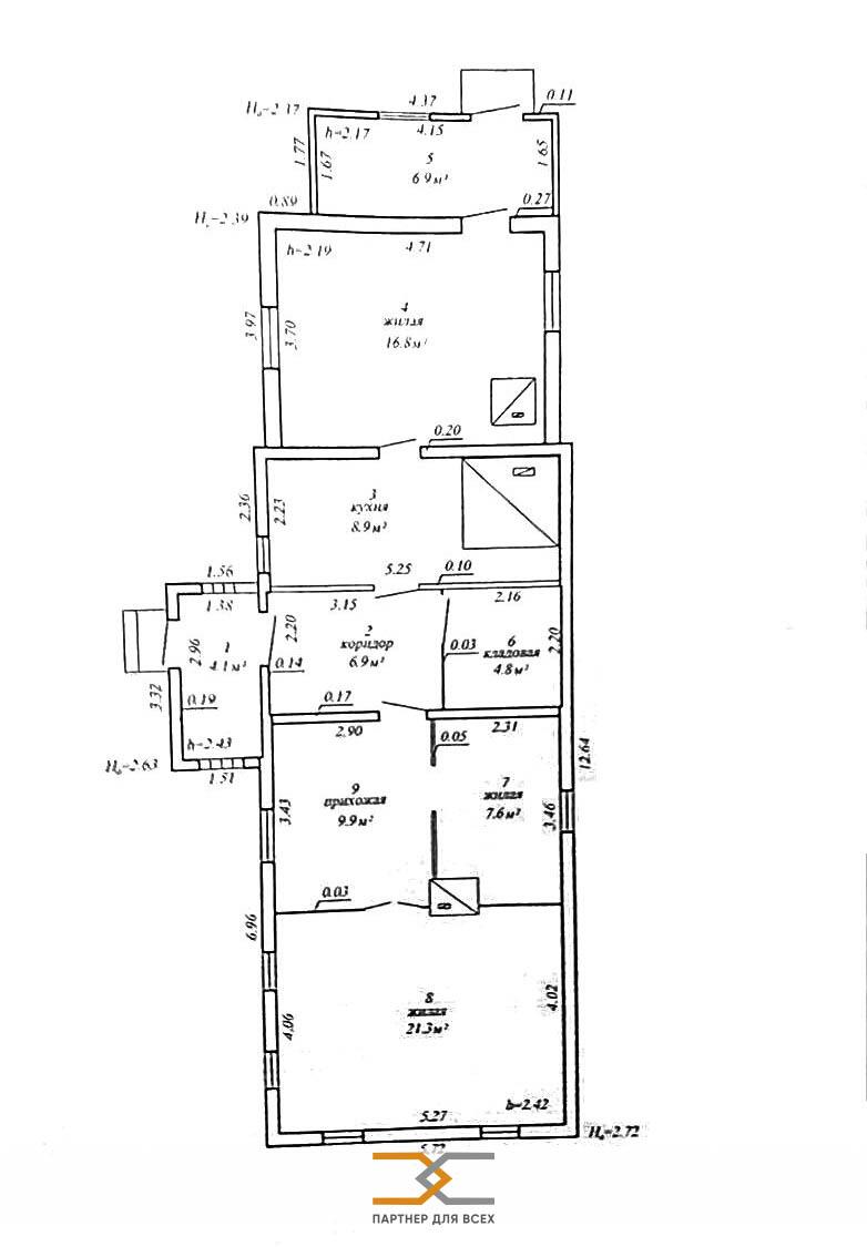
87.2 / 45.7 / 8.9 м² Общая, жилая, кухня
Печное Отопление
Есть Электричество
Нет Газ
Колодец Вода
Есть Канализация
1963 Год постройки
Брестское Направление
160 км Расстояние до МКАД
Примечание
Продается деревянный дом, обшитый сайдингом, в деревне Островчицы Клецкого района. В доме имеется большая остеклённая веранда. Три комнаты, кухня, санузел.Отопление печное, новые окна ПВХ. Водоснабжение дома производится насосной системой, есть бойлер для обогрева воды.На участке имеется сад, 3 сарая, колодец.Асфальтированная дорога обеспечивает легкий доступ к дому.В 600 метрах от дома протекает река Лань, имеется водоем и грибной лес. На расстоянии 23 км от деревни большое водохранилище Локтыши, на котором организована платная рыбалка. Кроме того, на протяжении всего года на водохранилище Локтыши можно наблюдать за различными водоплавающими и околоводными птицами (особенно в период сезонных миграций).На расстоянии 3 км от деревни расположен агрогородок Заостровечье, в котором находится школа, продуктовые магазины, больница, амбулатория, пункт скорой помощи, аптека, церковь, почта, Беларусбанк, детский сад, строительный магазин, магазин продажи автозапчастей.Ежедневно ездят (3 раза в день) маршрутный автобус в Минск.Поможем продать/купить/обменять Вашу недвижимость!ООО «Партнер для всех», УНП 690665135, лицензия Министерства юстиции Республики Беларусь № 02240/321 от 02.12.2016, договор на оказание риэлтерских услуг № 164/5 от 01.11.2024г
Номер договора: 164/5 от 2024-11-01
Агент по недвижимости
+375 (29) 151-44-41
an1514441@gmail.com
Оставить заявку по объекту
Расположение на карте
Бесплатная консультация
  • Проверка объекта недвижимости
  • Помощь в покупке/продаже объекта недвижимости
  • Помощь в продаже с одновременной покупкой недвижимости
  • Помощь арендатору/арендодателю
  • Утверждение перепланировок, сопровождение проектов
  • Консервация любой сложности
  • Вывод в нежилой фонд, перепрофилирование
  • Юридические услуги
  • Дополнительные услуги
Закажите бесплатную консультацию!

Либо звоните сейчас!

+375 29 151 08 08 velcom viber viber telegram whatsapp

an1514441@gmail.com phone

Наш офис в центре Минска:

пр-т. Независимости, д. 11-2

пл. Ленина, офис №21-23