Агентство недвижимости

«Партнер для всех»

Наш офис в центре Минска:

пр-т. Независимости, д. 11-2

пл. Ленина, офис №21-23

Нажмите на меня smile

+375 29 151 08 08 velcom viber telegram whatsapp

an1514441@gmail.com phone

Для выбора объекта нажмите сюда

Купить дом в д. Крупеники Минской области, 25 км от Слуцка

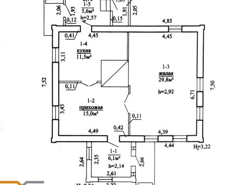
56.3 / 29.8 / 11.5 м² Общая, жилая, кухня
Кирпич Материал стен
Печное Отопление
Есть Электричество
Нет Газ
Колодец Вода
С/у на улице Канализация
Слуцкое Направление
140 км Расстояние до МКАД
Примечание
Продажа дома недалеко от гп. Уречье (2.5 км) Любанского района Минской области.Дом кирпичный, общая площадь по СНБ составляет 70 кв.м, жилая - 29.8 кв.м. Отопление печное, вода - колодец, санузел на улице. Участок 25 соток, крайний, растет сад. Есть погреб. Хорошее место для ведения хозяйства.Поможем продать/купить/обменять Вашу недвижимость!ООО «Партнер для всех», УНП 690665135, лицензия Министерства юстиции Республики Беларусь № 02240/321 от 02.12.2016, договор на оказание риэлтерских услуг № 66/5 от 03.05.2024г
Номер договора: 66/5 от 2024-05-03
Директор
+375 (29) 151-44-41
an1514441@gmail.com
Оставить заявку по объекту
Расположение на карте
Бесплатная консультация
  • Проверка объекта недвижимости
  • Помощь в покупке/продаже объекта недвижимости
  • Помощь в продаже с одновременной покупкой недвижимости
  • Помощь арендатору/арендодателю
  • Утверждение перепланировок, сопровождение проектов
  • Консервация любой сложности
  • Вывод в нежилой фонд, перепрофилирование
  • Юридические услуги
  • Дополнительные услуги
Закажите бесплатную консультацию!

Либо звоните сейчас!

+375 29 151 08 08 velcom viber viber telegram whatsapp

an1514441@gmail.com phone

Наш офис в центре Минска:

пр-т. Независимости, д. 11-2

пл. Ленина, офис №21-23